Ленточная пила своими руками в домашних условиях
Самодельная ленточная пила своими руками
Любое строительство или крупный ремонт вряд ли обойдется без досок и различных брусьев. При этом весь этот материал необходимо распилить до нужных размеров.
Конечно, можно приобрести уже готовые доски или брусья. Но это потребует больших финансовых затрат. Поэтому многие домашние мастера и профессионалы предпочитают сделать все самостоятельно.
А для этого необходим нужный инструмент, например, ленточная пила. И в этом случае не стоит сразу бежать в магазин за покупкой станка.
Если есть небольшой опыт, то у вас обязательно получится самодельная ленточная пила. А о технологии ее изготовления будет рассказано в этой статье.
Подготовительный этап
Ленточная пила своими руками обойдется дешевле, чем ее заводской вариант. Но чтобы изготовить все правильно, следует в первую очередь разобраться с самой конструкцией. Ленточная пила предназначена для распиливания деревянных заготовок большого диаметра. Как правило, с ее помощью из бревен делаются доски или брусья.
Сама конструкция представляет собой каркас, на который смонтированы электродвигатель и шкивы. Первый необходим для вращения шкивов, на которых закреплено режущее полотно. Именно с ее помощью и происходит распил заготовки.
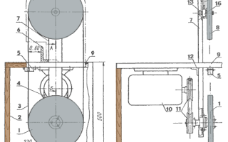
Прежде чем приступить к работе по созданию ленточной пилы по дереву, стоит сделать чертеж. С его помощью все дальнейшие работы будут проходить быстрее и понятней для вас.

1 – нижний шкив привода; 2 — станина; 3 – ленточная пила; 4 — ремень клиновой А710; 5 — демпфер; 6 — направляющая; 7 – несущая штанга; 8 – верхний шкив привода; 9 — стол, 10 – электродвигатель (АОЛ-22-2); 11 — шкивы ременного привода; 12 – кронштейн; 13 — гайка M12, 14 – верхняя опора; 15 – регулировочный винт; 16 — ползун
Далее, подготовьте необходимый инструмент и материал. Для работы вам понадобится:
- металлические уголки, профильные трубы, швеллера и прокат;
- электродвигатель;
- шкивы от старой сельскохозяйственной техники. Лучше всего подходят те, которые имеют диаметр в 30 сантиметров;
- листы фанеры или ДСП для создания тумбы;
- само режущее полотно;
- сварочный аппарат и слесарный инструмент
Предварительно необходимо сделать раму (согласно ранее составленному чертежу). Она выполняется из швеллера (100) при помощи сварки. Высота рамы должна составлять около полутора метров. Также желательно изготовить ящик под рамой, в него будут собираться стружки. Такую конструкцию легко выполнить из листов фанеры или ДСП.


Верхний шкив привода ленты

Демпфер необходим для гашения колебаний ленты. Изготавливается из текстолита.
1 — основание, 2 — болт М6 (2 шт.), 3 — планка, 4 — гайка с шайбой

Направляющая служит для правильной подачи обрабатываемых заготовок
Рекомендации по изготовлению
Самодельная ленточная пила состоит из нескольких основных элементов. В первую очередь – это рама. Именно на нее будут крепиться остальные компоненты. На раму монтируется электродвигатель, который соединяется со шкивом. Также нужно сделать устройство для подачи бревна (или другой деревянной заготовки) для распила.
Переходим к шкивам. Их в конструкции используется две штуки. При этом правый шкив будет ведомым, поэтому жесткой фиксации не требует. Его необходимо оснастить пружиной, которая отвечает за натяжку полотна. Левый шкив, который является ведущим, фиксируется жестко на своем месте.
Сами шкивы монтируются на специальных направляющих, выполненных из труб. При этом необходимо предусмотреть их фиксацию при помощи болтов. Шкивы необходимо подточить так, чтобы края ленты выступали на пару сантиметров. Также само режущее полотно устанавливается с небольшим наклоном. В этом случае оно будет натягиваться само, что предотвратит спадание ленты во время работы станка.

Механизм натяжения ленты: 14 – верхняя опора, 15 – регулировочный винт, 16 — ползун, 17 — крышка, 18 — винт М4, 19 — подшипник 60203, 20 — сальниковое уплотнение, 21 — торцевая шайба, 22 — шайба Гровера

Узел крепления пилящей ленты (нижний шкив)
1- нижний шкив привода ленты, 4 – клиновой ремень, 7 – несущая штанга, 11 — шкивы ременного привода, 19 — подшипник 60203, 23 — шайба, 24 – стопорный болт М6, 25 — дистанционная втулка, 26 — корпус буксы, 27 — крышка буксы, 28 — вал.

Букса для ленточного станка

Ведущий вал ленточного станка
После подготовки все детали монтируются на раме. Шкивы подсоединяются к электродвигателю при помощи ременной передачи (можно смонтировать цепную передачу). Далее, производится установка кнопок включение и ручная ленточная пила по дереву готова к использованию.
Очень важный элемент такого станка – это режущее полотно. Некоторые мастера изготавливают пилу своими руками. Для этого можно приобрести специальные заготовки из стальных полос. Далее, с использованием шаблонов, делается заточка.

Место пайки полотна
Заготовки выпускаются в виде полос, а для станка необходимо «кольцо». Для этого заготовки свариваются. При этом необходимо применять сложный метод. Дело в том, что нахлеста получиться недолжно. Соединение полосы в единое кольцо делается встык. После сварки места соединения тщательно отшлифовывается.
Такая сложность изготовления режущего полотна вынуждает многих покупать уже готовые пилы. Сегодня в магазинах большой ассортимент подобных изделий. Главное, подобрать размер режущего полотна так, чтобы он подошел к вашим шкивам.
Кроме этого, при выборе пилы следует обратить внимание на толщину. Чем этот показатель больше, тем больше радиус закругления полотна. Для более точного подбора можно воспользоваться специальными таблицами.
Рекомендации по эксплуатации
Сделанная своими руками ленточная пила может быстро окупить затраченные на ее производство время и средства. Но это будет соответствовать истине, если соблюдать рекомендации по эксплуатации такого оборудования. Специалисты дают такие советы:
необходимо правильно натягивать режущее полотно. Величина такого натяжения будет зависеть от марки используемой при изготовлении пилы стали, а также ее ширины. Измерить этот показатель можно при помощи специального прибора – «тирзометра»;
не стоит думать, что пила сможет проработать непрерывно долгое время. Специалисты рекомендуют следующий режим работы – два часа распила, далее полотно снимается и вывешивается в свободное состояние на 12-24 часа. Таким способом вы сможете продлить срок службы пилы;
всегда используйте смазку, особенно если распиливаете свежую древесину. У только что срубленных деревьев идет обильное выделение смолы. Ее масса начинает забивать резцы. Как результат пила начинает греться и быстро выходит из строя. Для смазки (и одновременного охлаждения) можно использовать обычную воду с добавлением простого моющего средства. В зимний период специалисты рекомендуют применять смесь дизтоплива и моторного масла;
после окончания работы ослабьте режущее полотно. При распиле оно нагревается и немного расширяется. После окончания работы полотно начинает остывать и уменьшаться в размерах. Если оставить ее в натянутом состоянии, то будут образовываться отметины от шкивов, на месте которых впоследствии получатся потертости;
соблюдайте правила заточки зубьев. От этого будет зависеть как скорость самой работы, так и срок службы режущего полотна. Также следите, чтобы зубья были всегда хорошо заточены и соблюдался правильный их развод.
Также необходимо строго соблюдать технику безопасности. Ленточная пила – это довольно травмоопасное оборудование. Лучше всего оснастить ее защитным кожухом. Такое дополнение позволит повысить безопасность работы, и поможет улучшить отвод опилок.
Также внимательно отнеситесь к выбору места установки станка. Конечно, самодельная ленточная пила не займет много места. Но все-таки вокруг должно быть достаточно пространства для свободного передвижения.
Кроме того, позаботьтесь о качественном освещении рабочего места. Довольно часто такой станок устанавливают на улице. В этом случае старайтесь работать только в светлое время или при наличии хорошего уличного фонаря.
Из видео вы узнаете как изготовить ленточную пилу своими руками из доступных материалов.
Как сделать ленточную пилу по дереву своими руками
Древесина — популярный материал, который часто используют в строительстве. Чтобы произвести распил в домашних условиях, применяют ленточные станки — самодельные или заводские. В статье будет дана информация, после которой читатель поймет, что изготовленная ленточная пила своими руками выполняет необходимые функции не хуже заводского оборудования. Кроме того, собирать ее довольно просто.
Самодельная ленточная пила
Области применения самоделки
Ленточные пилы ценят за распиловку очень больших материалов в домашних условиях.
Значительное преимущество лобзика ленточной пилы перед дисковым вариантом — в толщине полотна (1,5-2,5 мм). Благодаря этой особенности, инструмент является очень экономичным, если речь идёт о распиле толстых деревьев.
Поскольку используется очень аккуратный подход к работе, самодельные ленточные пилы часто используют на лесопилках.
Для справки! Данный агрегат применяют и при производстве мебели, где необходима высокая точность и расчет, а также ровность распила деревянных заготовок.
Технические возможности
До изготовления самодельной ленточной пилы, необходимо изучить технические особенности и возможные сферы применения. Агрегаты обычно разделяют по категориям:
- Данные о распиле за определенный промежуток времени.
- Ширина ленточного полотна.
- Угол, под которым можно осуществлять поворот механизма.
- Количество скоростей для проведения обкатки.
Если толщина ленты составляет примерно 14 мм, то целесообразно использовать подобный агрегат в бытовых нуждах при небольшом объеме обрабатываемой продукции. Если же объём нужен больше, и продукция поступает в промышленных масштабах, то толщина ленты должна составлять 20 мм.
Лента пилы
Расположение ленты может быть горизонтальным или вертикальным. Вертикальные агрегаты снабжают специальной панелью, с помощью которой можно контролировать процесс работы. Оператор должен в полной мере контролировать эту консоль, внимательно наблюдая за процессом нарезки древесины или другого материала.
Если агрегат небольших размеров, особое внимание необходимо уделять фиксации пильной поверхности. Горизонтальное размещение в таком случае используется для пила твердого типа древесины.
Конструкция ленточной самодельной пилы
В сети имеется множество чертежей для изготовления ленточной пилы в домашних условиях. Для самоделки желательно выбирать пилорамы, имеющие вертикальное расположение полотна.
- основной каркас;
- стол, где производится распиливание;
- шкивы;
- привода;
- пилы.
Для самоделки используют электродвигатель, работающий от 220В. Если планируется резать очень массивные заготовки, то желательно искать более мощный аппарат.
Важно! Если нет возможности или желания брать за основу электродвижок, то можно заменить его на бензиновый аналог.
Режущее полотно необходимо надежно закрепить на шкивах. Движение полотна происходит по замкнутой траектории (круговая или овальная форма).
Размер будущей установки нужно выбирать в зависимости от тех целей, которые необходимо выполнить. Если владелец живёт в квартире и на балконе желает установить ленточный агрегат, то можно изготовить мини-станок, преобразовав электролобзик.
Ленточная пила из лобзика
По какому принципу работает самодельный станок
Режущее полотно размещено на нескольких шкивах. Они начинают вращаться, приводя в движение остальные механизмы. Так происходит распилка древесных материалов.
Параметры ленточных пил
В зависимости от типа изготовления, ленточная пила может служить для обработки следующих материалов:
- дерево;
- синтетика;
- металл.
Металл обладает высокой прочностью, а потому необходимо использовать усиленную сталь для резки. При использовании стандартных пилок, зубья будут деформироваться очень быстро. Поэтому нужно заранее подготовиться к работе, учитывая тип материала.
Размер и шаг зубьев полотна
Для выбора резца, необходимо отталкиваться от размеров созданного станка. А также есть полезные рекомендации, которых стоит придерживаться:
- Для продольного пропила используют широкие полотна, в результате выходит качественный и ровный срез.
- Если предстоит обрабатывать тонкую заготовку, нужно использовать очень узкое лезвие.
- При необходимости контурной и фигурной резки, подбирают режущие элементы в диапазоне ширины от 14 до 88 мм. Предпочтительный размер — 35-40 мм.
На финальный результат обработки будет влиять и шаг зубьев:
- Крупная постановка подходит для обработки тонких листовых материалов.
- Чем «гуще» постановка зубьев, тем больше должно быть полотно.
- Средний вариант можно использовать при обработке синтетических материалов, чтобы не забивать резец отходами.
Но и этого недостаточно для правильного подбора лезвия. Важно обращать внимание на заточку и расположение зубчиков.
Расположение зубьев и заточка
Шаг зубьев влияет на финальную обработку. Выбор необходимо совершать в зависимости от твердости древесины:
- WM-полотна подходят для твёрдых и мягких пород древесины.
- АV — для работы с твердой древесиной, или мерзлым деревом.
- NV — для фигурного распила.
- NU — для мягких пород.
Также необходимо обращать внимание на заточку зубьев. Режущая кромка должна быть очень острой и ровной.
Внимание! Покупая расходные материалы, желательно спросить у продавца о возможности самостоятельной заточки.
Инструменты и материалы
Самодельные ленточные пилы по дереву делают из следующих материалов и инструментов:
- Фанера или лист ДСП для изготовления каркаса и шкива.
- Листовая сталь для пилы (или готовый образец из магазина).
- Швеллер для опорной рамы.
- Металлические уголки или рейки и деревянные бруски.
- Подшипники.
- Стальные штыри для изготовления осей шкива.
- Электродвигатель.
- Болты, гайки, саморезы, шайбы.
- Гибкая резина.
- Втулки.
- Текстолит.
- Прочный ремень.
- Краска или лак, кисточка.
- Пила.
- Ключи под головки болтов.
- Рулетка и карандаш.
Желательно использовать бревна толщиной в 20 мм для повышения надежности аппарата.
Ленточный станок по дереву — пошаговое изготовление
Как только все инструменты и материалы будут собраны, можно переходить непосредственно к изготовлению.
Сборка каркаса
Для изготовления нужно использовать крепкие породы дерева. Часто используют доски из старой мебели. Для начала необходимо сделать чертеж ленточной пилы по дереву своими руками в соответствии с конкретными параметрами.
Монтаж штанги и опоры для шкивов
Самые простые станки можно изготовить из фанеры или брёвен. Толщина штанги должна быть 8 на 8 см. К ней нужно прикрепить несколько опор — для фиксации шкива. Желательно использовать многослойную жесткую фанеру.
Специалисты не рекомендуют использовать большой зазор — при регулярном использовании станок будет раскачиваться из-за создаваемых зазоров.
Высота основы для самоделки зависит от роста конкретного человека. Важно обращать внимание, чтобы приводной и нижний шкивы, и создаваемая в работе стружка могли свободно помещаться в созданном пространстве. Форму можно выбрать любую, но обычно используют вариант закрытой тумбы, наподобие барабана. Он станет контейнером для сбора опилок.
Важно! Стоит учитывать возможность размещения поддона — для удобства чистки агрегата.
Столешница должна быть смонтирована на нижней опоре.
Столешница-самоделка
Создание шкивов и их монтаж
Механизм натяжения требуется сварить. Диаметр шкивов можно выбирать в произвольном порядке, но, чем он больше, тем дольше прослужит ленточная пила без замены каких-то деталей.
Выбирать полотна следует с соотношением 1 к 1000 (по отношению к диаметру шкива). Если детали будут длиной в 40 см, то диаметр должен составлять 4 мм.
При выборе параметров нужно учитывать некоторые особенности:
- Рассчитывают длину окружности шкивов: Д=3,14*R.
- Режущий диск должен вращаться со скоростью не больше 30 м/с.
- Далее высчитывают число оборотов — 0=30 м/с.
- Теперь идет вычисление для оборотов движка к вращению шкива.
- Развод зубьев можно выбрать индивидуально.
Чтобы лента размещалась в центре и не уходила в стороны, требуется сделать кромку выпуклой с углом в 5-10 градусов. На шкиве должна быть маленькая канавка, куда помещается ремень. Сверху всё это обтягивается резиной.
Подобранный диаметр должен получиться меньше шкива (примерно в 2 раза), тогда полотно не соскользнет. Верхняя часть закрепляется к подвижному блоку, и ставится в горизонтальную позицию. Таким образом, натяжения кромки будет достаточным. Для этого необходимо применять механизм натяжения: кусок древесины под блоком, к которому подсоединяется пружина. Когда мастер жмет рычаг, аппарат поднимается и пила натягивается.
На нижнем блоке необходимо закрепить несколько шкивов: 1 — ведущий, 2 — ведомый. При этом нужно убедиться, что они качественно сбалансированы. Для закрепления верхнего шкива желательно использовать самоцентрирующийся подшипник.
Направляющие полотна
Теперь направляющие зафиксировать под углом в 90 градусов. Таким образом, срез будет получаться максимально ровным и без перекосов. Самое простое решение — прикрутить к брусу несколько подшипников: для фиксации плоской стороны, остальные нужны для крепления по бокам. Направляющие необходимо выровнять по отношению к точке фиксации опоры.
Завершающая отделка
Приступать к работе можно сразу после сборки, но желательно оснастить агрегат кожухом для закрытия шкива.
Важно! Желательно привод ремня разместить вне рабочего стола — для защиты от опилок.
Чтобы древесина прослужила как можно дольше, её нужно покрыть лаком.
Настройка самодельной ленточной пилы
Пила должна быть точно настроена. Для этого проводят первоначальные испытания. Нужно следить, чтобы режущая часть ленты находилась под прямым углом.
И нельзя забывать про проверку кнопки отключения, ведь на устройстве должен быть тормозной узел.
Предоставленной информации достаточно, чтобы самостоятельно собрать ленточную пилу в домашних условиях.
Инструкция по сборке ленточной пилы своими руками в домашних условия, обучающие видео
Занимаясь разработкой самодельной ленточной пилы, важно понимать, как она устроена и для каких целей будет применяться. В случае ведения частного бизнеса, можно создать ленточную пилу своими руками, способную работать не только с деревом, но и с другими материалами, включая:
- Камень.
- Металл.
- Синтетику.
Из-за высокой плотности, обрабатывать такие материалы нужно специальными станками, изготовленными из усиленной стали. Стандартный металл не способен нормально резать камень или металлические заготовки. Также ему не под силу твердые породы дерева.

Сборка каркаса
Собирая каркас ленточной пилы, лучше отдавать предпочтение твердым и крепким породам дерева. В противном случае конечная конструкция не будет обладать требуемой жесткостью и начнет создавать вибрации. Отдельные элементы, включая рабочий стол, изготовляются из прочной фанеры, а ребра жесткости дополнительно усиливаются рейками. Наиболее доступный вариант — демонтировать старую мебель.
Первым делом в домашних условиях нужно составить чертежи, на основе которых будет выполняться сборка каркаса. Они создаются с учетом высоты рабочего помещения и физиологических особенностей человека, который будет работать за пилой.

Монтаж штанги и опор для шкивов
Самые примитивные ленточные пилы созданные своими руками с каркасом из фанеры или бревен, обладают опорной штангой толщиной 8х8 см. К ней прикрепляются 2 прочные опоры, которые будут удерживать шкивы. Желательно для ленточных пил создавать опоры из крепких материалов, включая многослойную фанеру с жесткой сердцевиной.
Дистанция между ними подбирается таким методом, чтобы там можно было разместить обрабатываемое бревно. Специалисты рекомендуют делать небольшой зазор, чтобы предотвратить возможные проблемы в будущем.
Сборка рабочего стола
Создавая ленточный станок для развода древесины своими руками, нужно обращать внимание на его размеры. Комфортная высота ленточной пилы выбирается в зависимости от особенностей постройки и человека. Главное, чтобы нижний и приводной шкив, силовой агрегат и большое количество стружки нормально помещались в свободном пространстве. Саму форму выбирают любую, но большинство пользователей останавливается на варианте закрытой тумбы, которая становится естественным контейнером для опилок.
На этапе монтажа рабочего стола для ленточной пилы своими руками необходимо предусмотреть удобный способ открытия и размещение поддона — это позволит удобно чистить пилу.
Столешницу устанавливают на нижней опоре. Если ее высота небольшая, понадобится создать подставку под всю конструкцию.
Вырезание шкивов и крепление их на опоры
Механизм натяжения ленточной пилы и шкивы сваривают с применением специального оборудования. Диаметр последних бывает произвольным, но чем он больше — тем дольше пила сможет прослужить без поломок. Однако важно следить за размерами полотен, выбирая соотношение 1/1000 по отношению к диаметрам шкива. Деталь длиной 40 см должна обладать диаметром в 4 мм. Но если соблюдать правила использования, можно будет применять даже узкий шкив для полотен в 6 мм.
При составлении параметров диаметра необходимо учитывать такие принципы:
- Для начала нужно рассчитать длину окружности шкива, используя следующий алгоритм: Д=3,14* диаметр шкива.
- Средняя скорость движения режущего диска не должна превышать 30 м/с.
- На следующем этапе необходимо определить число оборотов — оно составляет 0=30 м/с.
- Дальше понадобится вычислить соотношение оборотов мотора по отношению к вращениям шкива привода.
- Развод зубьев выбирается индивидуально в зависимости от назначения и сферы применения пилы.

Чтобы ленточная пила самостоятельно размещалась в центре и не спадала, кромку делают выпуклой, придерживаясь угла в 5-10°.
На шкиве привода с ремнем рекомендуется оставлять небольшую канавку, где будет находиться ремень. Сам шкив обтягивается резиной с велосипеда или автомобильных колес.
Выбранный диаметр должен на 1-2 размера быть меньше диаметра шкива, что исключит вероятность соскальзывания полотна. Верхний элемент фиксируется на подвижном блоке и перемещается в горизонтальной позиции, гарантируя нормальную степень натяжения режущей кромки. Для этого используется механизм натяжения ленточной пилы, в качестве которого может применяться брус под блоком, к которому присоединена пружина. Когда специалист нажимает на рычаг, конструкция автоматически поднимает блок со шкивом, натягивая пилу.

Еще на этом этапе сборки своими руками необходимо позаботиться о способе фиксации рычага в выбранном положении. Подобную задачу лучше решить с помощью болтов, которые находятся на разных уровнях. Посредством пружины будет обеспечиваться оптимальная степень давления, поглощающая напряжение.
В нижнем блоке закреплено 2 шкива: ведомый и ведущий. Главное — убедиться, что они достаточно сбалансированы, а вероятность появления «восьмерок» во время вращения исключена.
Чтобы закрепить верхний шкив своими руками, лучше задействовать самоцентрирующийся подшипник. Он обеспечивает возможность быстрого снятия и повторного монтажа колес. При этом сами колеса должны фиксироваться с максимальной прочностью, в противном случае подшипники начнут расшатываться.
Монтаж направляющих полотна


На следующем этапе необходимо закрепить направляющие ленточной пилы под углом 90 градусов. Это предотвратит получение неровных и неправильных заготовок с кривыми концами или дефектами.
Наиболее простым решением является прикручивание к брусу 3 подшипников: 1 фиксирует плоскую сторону, а остальные предназначены для крепления ленты по бокам.
Важным этапом монтажной работы ленточной пилы своими руками является выравнивание направляющих по отношению точки фиксации опоры. В противном случае даже маленькие отклонения приведут к большим дефектам и деформациям.
В качестве альтернативы для 2 подшипников можно использовать ограничители из дерева. Еще следует закрепить ряд направляющих под столом. Важно крепить их таким образом, чтобы они размещались поближе к заготовке, а еще лучше — на дистанции 3-4 см от бревна.
При желании работать с разными по толщине материалами рекомендуется предусмотреть возможность регулировки высоты направляющих.
Завершающая отделка, проверка и настройка
Пилу из дерева можно эксплуатировать сразу после сборки, однако специалисты рекомендуют предварительно оснастить ее кожухом, который закроет верхний шкив.
Подобные манипуляции не просто придадут конструкции эстетическую привлекательность, но и повысят степень безопасности: даже при соскальзывании ленты со шкива она остановится в кожухе. В качестве дополнительного аксессуара следует предусмотреть контейнер под стружку, к которому можно будет легко получить доступ.
Привод ремня рекомендуется вывести из-под рабочего стола, защитив его от опилок. Силовой агрегат защищается кожухом, изолированным от пыли и прочего мусора.
Финальный этап обработки древесины лаком или краской положительно сказывается на сроке службы инструмента, а еще предотвращает получение травм при контакте со сколками и щепками необработанного материала. Перед эксплуатацией все поверхности дополнительно зашкуриваются и пропитываются антисептиками — они препятствуют гниению и развитию плесени.
Как сделать ленточную пилу своими руками в домашних условиях

Ленточная пила своими руками — не самая простая для сборки, но очень полезная в домашней мастерской конструкция. На ее сооружение придется затратить время, но зато не понадобится за большие деньги покупать готовый станок.
Как устроена ленточная пила
Ленточные пилы могут отличаться по конструкции в зависимости от моделей. Однако для домашней мастерской выбирают обычно станок с вертикальным полотном, который состоит из следующих основных деталей:
- каркаса, или рамы;
- распиловочного стола;
- привода, или электродвигателя;
- шкивов;
- пильного полотна.
Конструкция приводится в действие при включении электромотора, и режущая лента начинает двигаться по замкнутой круговой траектории на высокой скорости.
Чертежи с размерами ленточной пилы
Прежде чем приступать к сооружению станка, необходимо найти соответствующие чертежи. На них обозначаются не только элементы конструкции ленточной пилы, но и размеры.
Классический напольный станок занимает около 50 см в ширину
Знание размеров будущей ленточной пилы помогает заранее выбрать и расчистить для нее удобное место в домашней мастерской.
Какие материалы и инструменты потребуются для изготовления пилы
Набор инструментов и расходных материалов для создания ленточной пилы своими руками в домашних условиях может различаться в зависимости от особенностей выбранной конструкции. Но, как правило, в обязательном порядке для сооружения станка требуются:
- доски или листы фанеры для каркаса;
- подшипники;
- мотор — электрический или бензиновый;
- металлические уголки;
- металлическое режущее полотно — самодельное или покупное;
- саморезы и болты с гайками;
- резина от велосипедной камеры;
- деревянные бруски и рейки, они нужны для опорной рамы конструкции;
- втулки;
- ремень для передачи вращательного момента;
- стальной прут, который послужит валом для шкивов;
- стальной лист или кусок текстолита;
- лак или краска, они нужны на заключительном этапе создания станка.
Также при изготовлении ленточной пилы своими руками потребуется использовать следующие инструменты:
- болгарку;
- шуруповерт;
- плоскогубцы;
- гаечные ключи — размеры подбираются в соответствии с болтами;
- электролобзик;
- отвертки;
- молоток.
Выбор ленточного полотна
При желании изготовить пильное полотно для ленточного станка можно своими руками из инструментальной стали У8 или У10. Материал должен быть прочным, но гибким, с толщиной 0,4-0,8 мм для распила древесины твердых пород. При самостоятельном создании полотна понадобится с помощью болгарки вырезать в металле зубья, развести их и заточить, а потом спаять газовой горелкой ленту в сплошное кольцо и зашлифовать шов.
Работа очень долгая и трудоемкая, требующая определенных навыков — поэтому чаще полотно приобретают в магазине в готовом виде. Нужно брать ленту с шириной 18-88 мм в зависимости от своих целей. Для реза древесины подходят твердосплавные пилы и полотна из инструментальной стали, они достаточно надежны и при этом вполне доступны по цене.
Как сделать ленточную пилу своими руками
Существует несколько основных технологий изготовления ленточной пилы своими руками для дома. Какую из них выбрать, зависит от личных пожеланий и требований, все варианты позволяют сделать удобный и надежный станок.
Как сделать из велосипеда
Старый велосипед, который больше не нужен для прямого использования, отлично подойдет для того, чтобы самому сделать ленточную пилу по дереву:
- Первым делом необходимо сделать своими руками раму. Ее можно соорудить из дюймовки сосны, из слоев досок с перехлестом, из прочных листов фанеры. Раму традиционно выполняют в форме буквы С, в нижней части монтируют две подпорки, соединенные с основанием, а сверху — посадочное место для направляющего механизма с колесом.
Сделать раму можно не только из дерева, но и из стали - Дальше собирают и устанавливают подвижный блок закрепления колеса в верхней части, который будет перемещаться по вертикали. Ему предстоит отвечать за натяжение полотна ленточной пилы. Блок представляет собой прямоугольную рамку с держателем вала верхнего движущегося колеса.
Верхний шкив должен перемещаться в вертикальной плоскости - На следующем этапе необходимо установить на конструкцию шкивы. По классической схеме их изготавливают самостоятельно, но при использовании старого велосипеда берут готовые колеса. Их монтируют на вал сверху и снизу и осуществляют фиксацию. Дальше нужно набросить на верхний шкив приводной ремень и выполнить балансировку. Для этого следует установить в качестве опорных для распиловочного полотна подшипники, закрепить колесо, чтобы оно вращалось с опусканием, и проделать небольшие углубления в нижней части с тыла. На шкивы надевают камеры, которые защитят конструкцию от соскальзывания режущей ленты.
Велосипедное колесо представляет собой готовый шкив для ленточной пилы с углублением по периметру - Дальше остается только окончательно закрепить колеса на пильной раме. На вал надевают шайбу и фиксируют болтом. Затем то же самое выполняют для нижнего колеса. Всю конструкцию выравнивают по линейке и запускают в проверочную работу, сначала с минимальной нагрузкой.
Шкивы должны располагаться в одной плоскости, иначе лента не сможет двигаться ровно
Ленточная пила своими руками по металлу или по дереву готова, работать она будет не так плавно, как покупная, но резать сможет.
Как собрать ленточную пилу из лобзика своими руками
Еще одна простая схема предлагает сделать мини ленточную пилу по дереву своими руками из электрического лобзика. Алгоритм предлагается следующий:
- К небольшой квадратной заготовке ручкой вниз прикладывают лобзик и фиксируют металлические уголки по обеим сторонам. При помощи дрели в отмеченных местах проделывают отверстия для винтов. Уголки закрепляют на деревянной подставке.
В качестве основания для настольного станка подойдет любая твердая доска или небольшой лист ДСП - Между уголками вставляют лобзик, слегка приподнимают его и кладут кусок резины между кромкой металлических элементов и корпусом. Поскольку инструмент не прижимается вплотную к доске, снизу остается пространство для осуществления регулировки через кнопки. Длинными винтами лобзик фиксируют между уголками, чтобы он не качался и не люфтил.
Резиновая прокладка смягчает возможные вибрации при работе электролобзика - Теоретически подобием ленточной пилы уже можно пользоваться, однако удобнее довести конструкцию до совершенства и придать ей вид классического станка. Для этого к подошве лобзика при помощи винтов прикрепляют столешницу компактных размеров. Предварительно в ней нужно прорезать узкое отверстие, через которое будет выступать ленточное полотно инструмента.
Для столешницы подойдет любой твердый материал — сталь, текстолит, эбонит
Для серьезных работ и реза бревен и крупных досок ленточная пила из электролобзика своими руками не подойдет. А вот мелкие заготовки с ее помощью обрабатывать будет очень удобно.
Как сделать ленточную пилу из фанеры своими руками
Популярный вариант предлагает изготовить ленточную пилу своими руками из фанеры:
- Первым делом собирают каркас для фанерной пилы. Из досок сооружают тумбу, внутри которой устанавливают электродвигатель. Из деревянного бруса делают штангу, в верхней и нижней части закрепляют фанерные опоры для шкивов. Тумбу и раму соединяют между собой. В нижней заготовке под колесо пропиливают отверстие для втулки с подшипниками. Поверх опоры укладывают столешницу из текстолита, в которой заранее подготовлено узкое отверстие для режущего полотна. Сбоку конструкции рекомендуется приделать также небольшую щетку. Установить ее нужно прямо по ходу движения ленточной пилы по шкиву, чтобы автоматически удалять опилки в процессе работы.
Конструкция из фанеры получается достаточно прочной, несмотря на хрупкий вид - Дальше приступают к изготовлению фанерных шкивов. Их вырезают в форме кругов и склеивают между собой так, чтобы толщина детали составляла не менее 3 см. Всего круга требуется три — один с пазом для ременного привода и еще два для ленточного полотна. Круг с пазом под ремень устанавливают внутри тумбы, второй монтируют в нижней части конструкции, а третий — сверху. В последнем шкиве проделывают отверстие для втулки с подшипником и фиксируют ее при помощи клея и деревянных реек.
Колеса необходимо обтянуть резиновыми камерами, чтобы режущее полотно не соскакивало - Верхний шкив закрепляют на конструкции подвижно, чтобы он позволял натягивать ленточную пилу. Для регулировки монтируют простой рычажный механизм, фиксируемый в разных положениях болтами. Нижние шкивы ставят неподвижно на одном и том же валу и надевают ремень на тот из кругов, которому предстоит передавать вращение от двигателя пиле.
Перед проверочным запуском шкивы нужно тщательно выровнять в вертикальной плоскости относительно друг друга - Режущую ленту устанавливают на шкивы, по гладкой стороне полотна при этом монтируют направляющие, которые не позволят пиле выгибаться. Проще всего использовать для решения задачи роликовые подшипники.
Чтобы лента не смещалась под нагрузкой, подшипники должны располагаться идеально ровно - На заключительном этапе остается прикрыть кожухом верхний шкив ленточной пилы. Не помешает защитить от опилок и пыли электродвигатель и колесо с ременной передачей. Также к мотору нужно подвести пусковую кнопку, расположив ее в удобном месте, и для повышения безопасности установить в электроцепи защитное устройство, выключающее аппарат при перегрузках. Под столешницей можно расположить контейнер, чтобы сразу же отправлять в него опилки в ходе работы.
Кожух придает ленточной пиле аккуратный вид и защищает конструкцию от опилок
Самодельная ленточная пила по дереву своими руками готова к использованию. Ее остается только настроить и убедиться, что конструкция работоспособна. Для этого пильное полотно при помощи верхнего колеса натягивают до максимума, проверяют, что кромка располагается перпендикулярно столешнице, и снимают направляющие. Агрегат запускают в действие и выполняют пробный рез на небольшой заготовке, стараясь не подвергать ленту нагрузкам.
Если пила своими руками собрана правильно, то шкивы и полотно должны двигаться плавно, без рывков и вибрации. Направляющие после проверки устанавливают обратно на место, теперь на ленту можно будет подавать нагрузку.
Заключение
Ленточная пила своими руками может быть сделана из простых и доступных материалов. Затраты на сооружение конструкции в любом случае окажутся меньше, чем на покупку готового инструмента. Самодельный станок не подойдет для профессиональных работ, зато окажется очень полезным для хобби.
Ленточная пила своими руками
Самодельная ленточная пила, сделанная своими руками: подробное описание изготовления самоделки с фото и видео.
Всем привет! Вот понадобилась ленточная пила для домашней мастерской, решил сделать своими руками.
В наличии был электромотор на 300 ватт, решил его использовать для своей самоделки.

Также будет использована лента — 1830 х 16 мм. Приводные колёса сделаем из фанеры.

Вот такие заготовки под приводные колёса.

Из уголка сварил раму, установил двигатель, приводные колёса, сделал ременную передачу.


Для того, чтобы пила не съезжала при пилении, поставил упорные подшипники. Узел состоит из трех подшипников и двух уголков.
Отверстия сделал овальные, чтобы регулировать зазоры между ними и лентой. Таких узлов сделано два, второй ставится под столом.



Выдвижная штанга, состоит из двух сваренных уголков и вставленной профильной трубы. Фиксируется болтом через приваренную гайку. Корпус штанги прикручен болтами к горизонтальному уголку и имеет подвижность для регулировки.


Из профильной трубы сделал раму стола, на раме будет прикручен лист ДСП.



Установлена защита ленты с противоположной от реза стороны, и короб на верхнее колесо.






В результате получилась вот такая самодельная ленточная пила для домашней мастерской. Пилит очень хорошо и быстро, самоделкой полностью доволен.

Также рекомендую посмотреть видео, где показана ленточная пила в работе.

Сделать раму можно не только из дерева, но и из стали
Верхний шкив должен перемещаться в вертикальной плоскости
Велосипедное колесо представляет собой готовый шкив для ленточной пилы с углублением по периметру
Шкивы должны располагаться в одной плоскости, иначе лента не сможет двигаться ровно
В качестве основания для настольного станка подойдет любая твердая доска или небольшой лист ДСП
Резиновая прокладка смягчает возможные вибрации при работе электролобзика
Для столешницы подойдет любой твердый материал — сталь, текстолит, эбонит
Конструкция из фанеры получается достаточно прочной, несмотря на хрупкий вид
Колеса необходимо обтянуть резиновыми камерами, чтобы режущее полотно не соскакивало
Перед проверочным запуском шкивы нужно тщательно выровнять в вертикальной плоскости относительно друг друга
Чтобы лента не смещалась под нагрузкой, подшипники должны располагаться идеально ровно
Кожух придает ленточной пиле аккуратный вид и защищает конструкцию от опилок